Accomodation Building
2 Hanau

Client______Staatsbauamt 2 Frankfurt


Planning time / Building time______1998 - 2001
Gross area______6050 m²

 

 

  • 1
  • 2
  • 3
  • 4
  • Construction Data

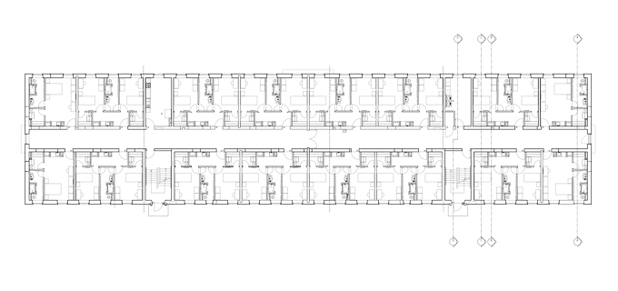
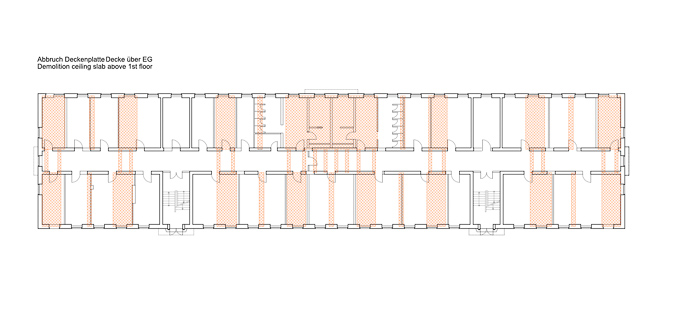
Accomodation Building 2 · Hanau

Repair of the accommodation building including associated outdoor facilities. The project is located within the Pioneer Kaserne, Hanau. The existing building consists of a three-story accommodation area with a full basement and a converted attic.

 

Go back