Accomodation Building
1321 Hanau

Client______Staatsbauamt Fulda


Planning time______1998 - 2000
Gross area______3886 m²

 

 

  • 1
  • 2
  • 3
  • 4
  • Construction Data

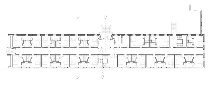
Accomodation Building 1321 · Hanau

Repair of accommodation building No. 1321 including associated outdoor facilities. The project is located within the Fliegerhorst barracks in Hanau-Erlensee. The building consists of a two-story accommodation area with a full basement and a converted attic

 

Go back